Top floor¶
Top floor slab¶
Workshop
- Select the top floor as the current storey.

- Select the function CREATE SLAB.
- Select the record Standard and if necessary change the entry mode to Draw contour manually.

- In the Input Assistant, the drawing function POLYGON is selected as standard. Run along the contour shown in red.

- Cancel the function with Esc.

Top floor walls / doors¶
The visibility of storeys is set in Storeys manager. From the context menu (right-click), for the individual storeys you can switch between visible and invisible.
Inner walls must not intersect! This leads to errors in the room calculation. Stop the second wall and start a new wall on the opposite side.
Workshop
You've already got enough experience with drawing to be able to create the walls and doors on the top floor by yourself.
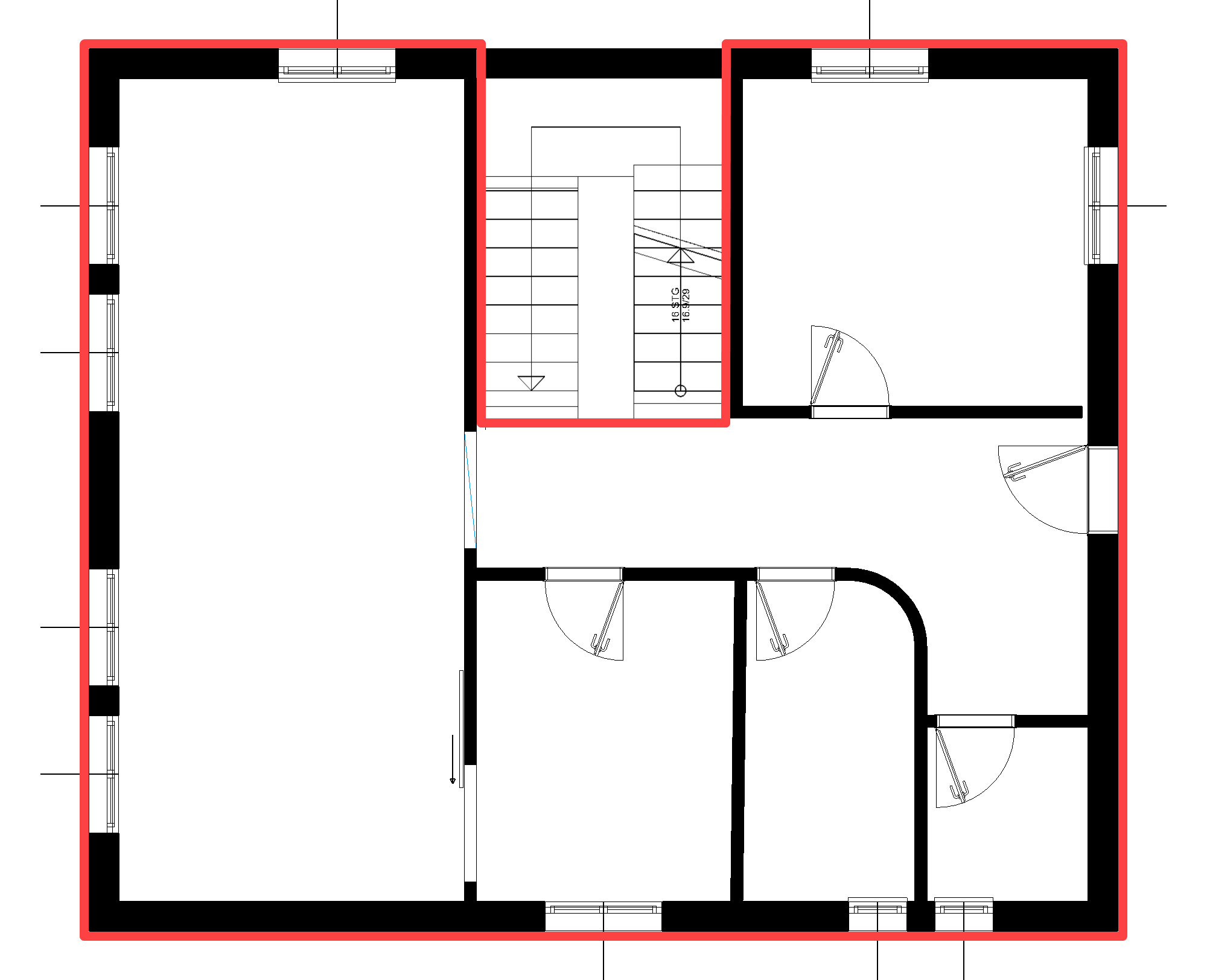
- Draw the top floor walls in accordance with the following figure.
- Use the same settings as in the ground floor for the doors in the top floor.
- . For the sake of clarity, the ground floor can be switched to invisible or visible again. To do so, right-click on the ground floor and select the appropriate option.
Red dotted lines = walls in ground floor
Outer wall

Inner walls

Doors

Copy into active storey¶
Some building components are the same in different storeys. Construction parts can be copied to other storeys and then changed if necessary.
The inner walls of the basement storey are arranged in a similar way to those on the top floor.
Workshop
- Select the basement as current storey.

- Select the function COPY INTO ACTIVE STOREY.

- Switch to the solid model ++ctrl+D++ and rotate the model in 3D.
- Copy the objects to the basement.
Select the exterior wall P1, the inner walls P2-4 and the stair P5, to copy the relevant elements to the basement.

Edit / delete AR-Object¶
Workshop
The wall thickness of the outside wall in the basement must be corrected to 25 cm and the material changed to concrete.
- Switch only the basement to visible.
Double-click on "BA".
- Click on the outer wall and in the property bar switch to the record Concrete and set the wall thickness to 25 cm.

- The wall thickness must be retained in the area near the staircase. So that a different wall thickness can be assigned to one part of the wall, the wall must be divided in this area.
Under the change functions, select the function DIVIDE WALL at the end of the property bar.

Since this is a closed wall, two partition points must be specified. For the partition points, click on the points P1 and P2.

- Now click the new wall section and set the wall thickness back to 30 cm.


- Cancel the function with Esc.
- You copied the basement staircase from the ground floor. The connections and plan graphics must be adjusted to the storey.
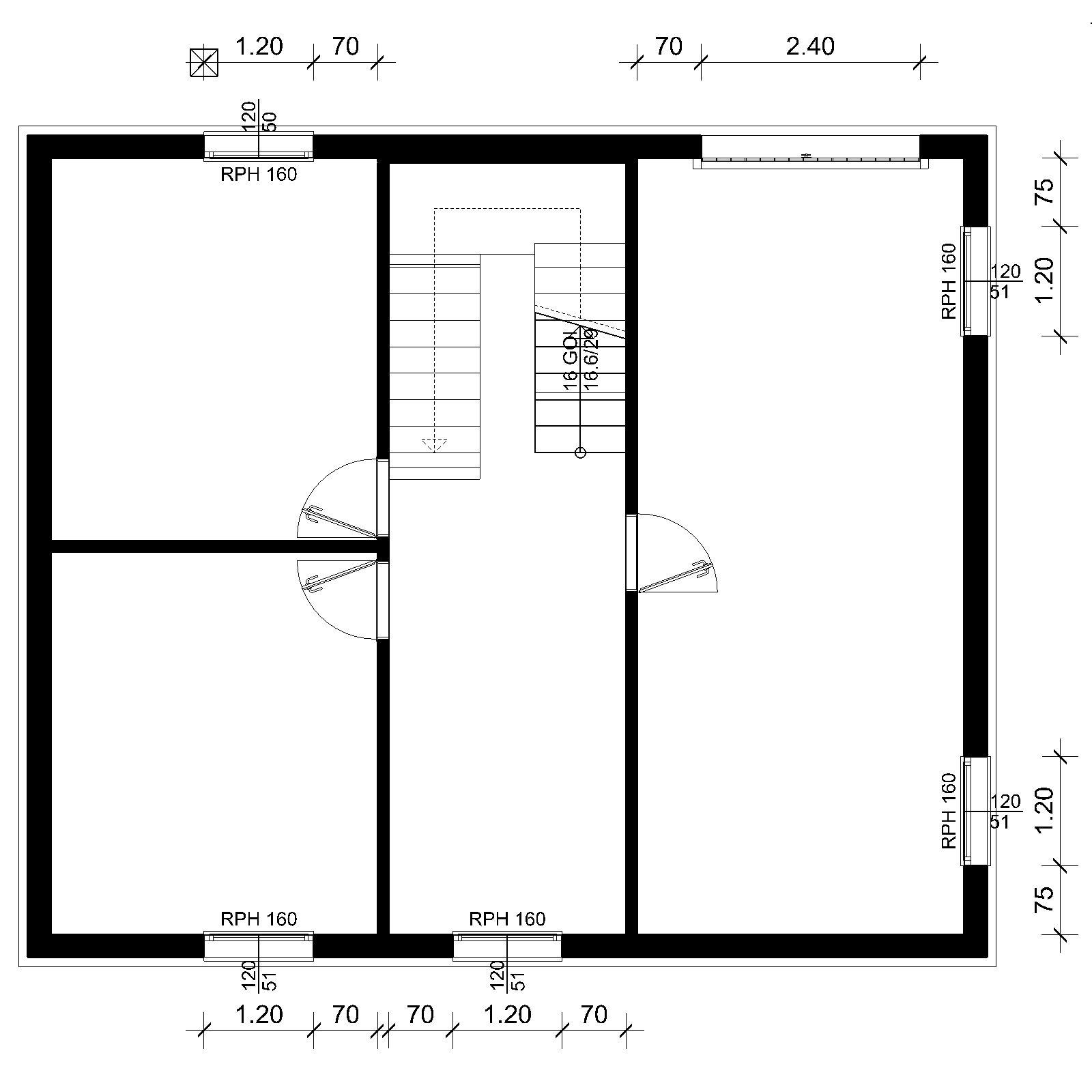
Double-click on the staircase to open the stair dialog. Enter the various settings.
Display in model Display in 2D plan 

- Delete one of the two basement doors. Select the doors and delete them using the DELETE function or the Del key.

- Delete selection > YES.

The delete confirmation can be disabled in the options.
Foundation slab with projection¶
Workshop
The basement must be supplemented with the slab, the garage door and the basement windows.
- Switch back to the wire model Ctrl+D and to the starting position Ctrl+Space.
- Select the function CREATE SLAB.
- Switch to the type Foundation. This type has the attribute Fundamentplatte.
The Foundation parameter is saved with a thickness of 25 cm. Since the foundation was only specified at 20 cm at the start of the project, a decision must be made as to whether the thickness of the parameter should be changed (option: Change to storey level) or whether the parameter should be adjusted automatically (option: Adjust automatically). Adjust automatically means that the program deletes the lowest 5 cm of the parameterised layer structure.
Select Adjust automatically.

- The drawing functions appear in the Input Assistant. Switch to the drawing function RECTANGLE.

- Expand the rectangle so that it extends over the points P1 and P2 auf.

- Cancel the function with Esc.
- Select the freshly drawn slab. If the selection prompt appears, switch to the slab.

- Click again on the contour P1 so that the input assistant appears and select the manipulation function MOVE ALL ELEMENTS PARALLEL. Move the cursor vertically over the marking point P1 and enter the distance of 10 cm.


- Cancel the function with Esc.
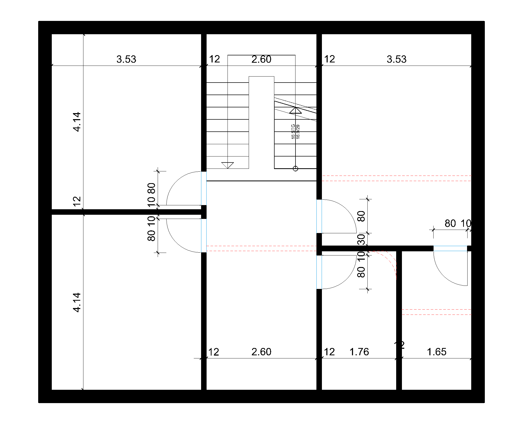
- The right-hand part of the basement is a garage. Draw the garage door with the following settings.

- The last thing to do is to add the basement windows to the basement floor plan. The dimensions can be seen on the plan below.
