Excavation¶
The excavation is defined with a contour. Several excavations can be defined in the same project.
Workshop
- Switch the "without structure" storey to active and hide the top floor.

- Start the TERRAIN function
and then the EXCAVATION function. Ensure that the type of entry is set to "Drawing the contour".

- The drawing functions appear in the Input assistant. Switch to the drawing function RECTANGLE.
- Draw the rectangle using the two points P1 and P2.
- Enter the values into the excavation dialog and confirm with
.

- Start the terrain function and then the EXCAVATION function. Ensure that the type of entry is set to "Drawing the contour".

- The drawing functions appear in the Input Assistant. Switch to the drawing function POLYGON.

- Draw a contour from point P1 – P7.

- Fill-in the values for the second excavation and confirm with
.
Tip
There are 3 different terrain view modes and 2 excavation modes for the depiction of the terrain.
- Terrain mode - with structures

- Terrain mode - Step by step

- Terrain mode - reference terrain

- Excavation mode - without excavation
(as an example) +

- Excavation mode - with excavation
(as an example) +

The volume difference between the reference terrain and the current state is displayed in the property bar.
Your terrain should then look as follows:

For the internal staircase, an additional excavation must be defined. - Terrain mode - with structures
- Display the "GF" storey manually by double-clicking on the storey icon.
- Start the TERRAIN function and then the EXCAVATION function. Ensure that the type of entry is set to "Drawing the contour".

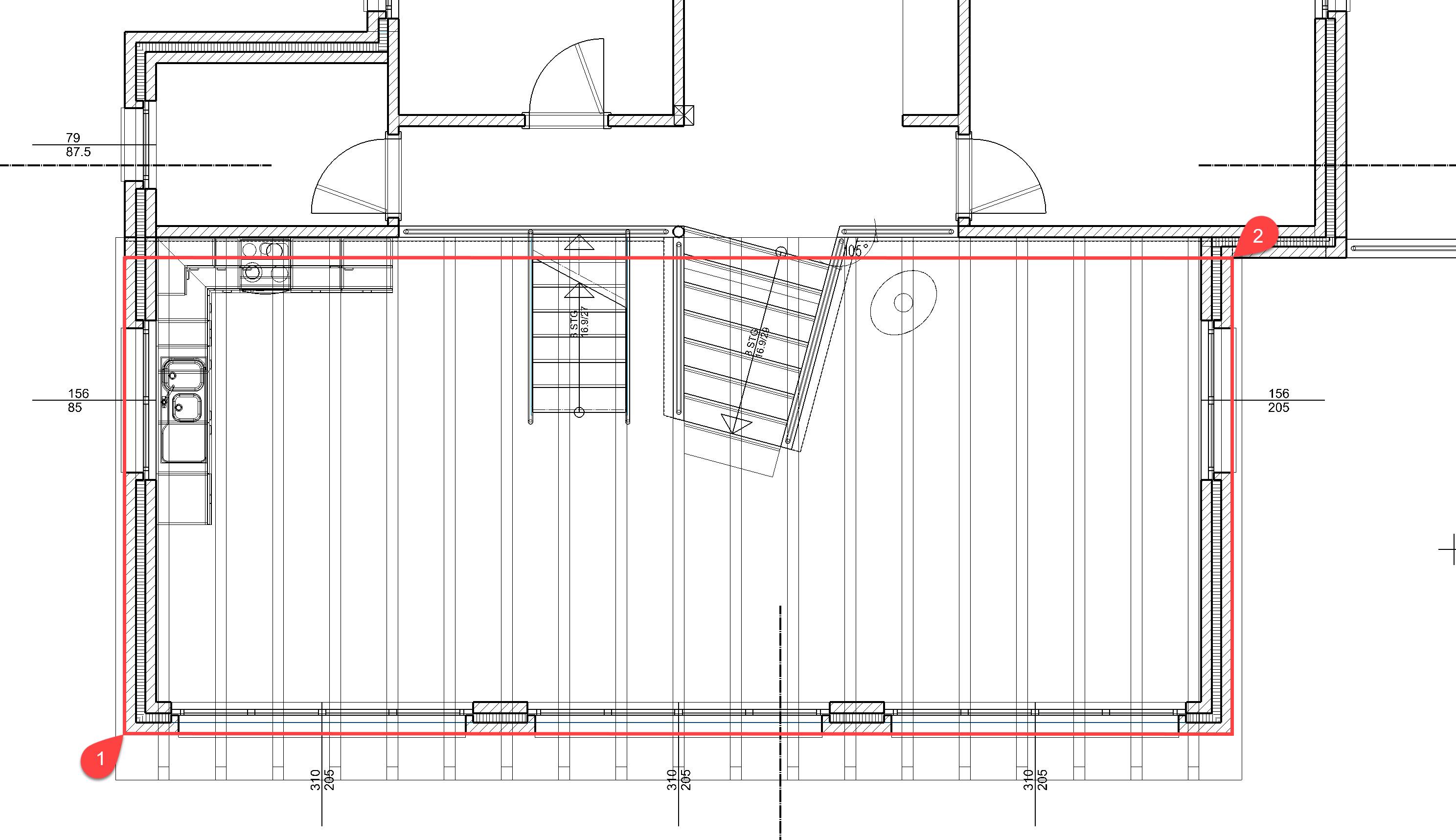
- The drawing functions appear in the Input Assistant. Switch to the drawing function POLYGON.

- Draw the polygon along the red contour.

- Enter the values into the excavation dialog.

- Create the storey "without structure" manually by double-clicking on the storey icon.
The excavation for the stairs was created.

- Now try to create the excavation for the external staircase.

Tip
The settings for the excavation can be edited if necessary. In the wire model, either select the excavation contour or, in the solid model, a plane of the excavation and click in the property bar on TERRAIN OPTIONS. The excavation screen opens and the values can be edited.
Tip
Before continuing, save the current status of the terrain so that you always have this excavation state available.
If you show the terrain only, in the menu select FILE > SAVE AS and save the terrain (visible selection) under a separate name.