Vermassung ¶
Ein Mass wird erzeugt, indem zuerst zwei Masspunkte P1 definiert werden und dann die Lage P2 des Masses fixiert wird. Anschliessend können weitere Masspunkte P3 ergänzt werden.
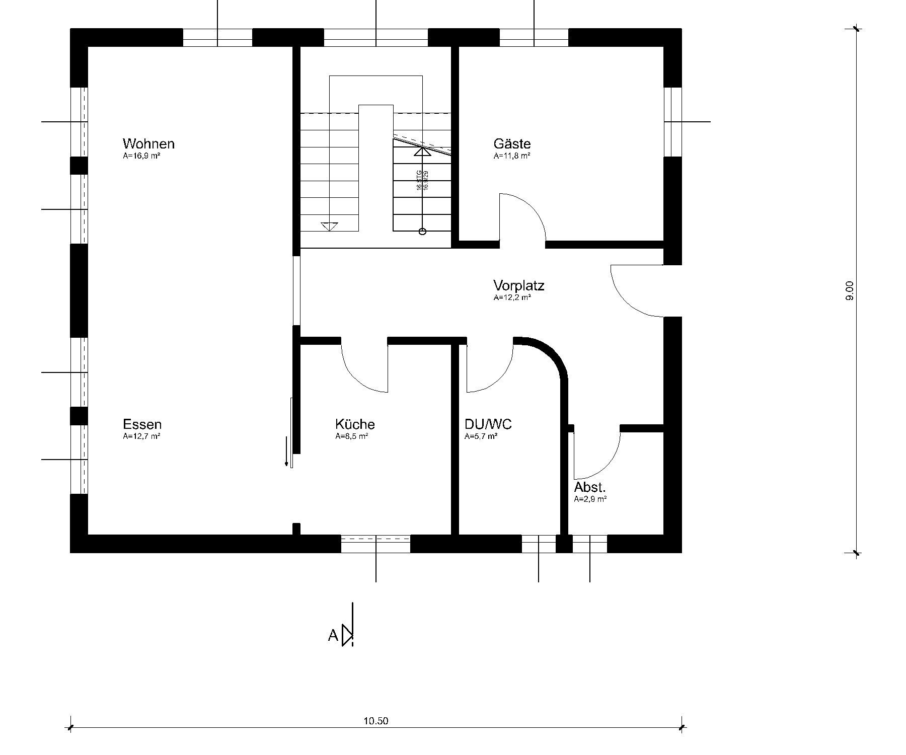
Workshop
Erzeugen Sie die Hauptmasse im Grundriss und im Schnitt.

- Wechseln Sie in die Planansicht EG.

- Wählen Sie die Funktion KETTENMASS.
Wählen Sie die Parametergruppe 1 aus.
Tipp
Die Parametergruppen verstehen sich als Schnellzugriff auf die 3 am häufigsten verwendeten Vermassungsparameter in der jeweiligen Darstellungstiefe. Die Zuweisung der Parameter erfolgt in den Darstellungstiefen-Einstellungen.
- Setzen Sie die Masspunkte des horizontalen Masses.
Klicken Sie auf die Ecke bei Punkt P1, dann auf die Ecke bei Punkt P2. Bewegen Sie den Cursor senkrecht unter den Punkt P2, sodass die temporäre Hilfslinie erscheint und geben Sie den Direktabstand 300 cm ein.

- Jeder weitere Klick erzeugt weitere Masspunkte für dieses Kettenmass.
Wählen Sie die Funktion KETTENMASS erneut, um die Masskette abzuschliessen und mit einem neuen Kettenmass zu starten.
- Masspunkte des vertikalen Masses setzen. Klicken Sie auf die Ecke bei Punkt P3, dann auf die Ecke bei Punkt P4. Bewegen Sie den Cursor rechts neben Punkt P4, sodass eine horizontale Hilfslinie erscheint. Geben Sie den Direktabstand 300 cm ein.
- Brechen Sie die Funktion mit Esc ab.
- Wechseln Sie in die Schnittansicht A-A.
- Wählen Sie die Funktion KETTENMASS.
Wählen Sie die Parametergruppe 2 aus.
- Setzen Sie die beiden Masspunkte P1 und P2 und bestimmen Sie anschliessend die Lage P3 des Masses.

- Ergänzen Sie das Mass mit den beiden Masspunkten P4 und P5.
- Brechen Sie die Funktion mit Esc ab.
- Wählen Sie das eben erstellte Mass mit einem Klick. Die Handles der Masslinien und Masstexte erscheinen. Verschieben Sie den Masstext über dessen Handle.


Erklärung
Massparameter
![]()
In der Massparametermaske sind die Einstellungen für den Masstext (1), den Toleranztext (2) und das Massbegrenzungselement (3) (Pfeilparameter) gespeichert.
Textparameter
Erweiterte Einstellungen für den Masstext finden Sie im Menü (4) DETAILPARAMETER > TEXTPARAMETER.
Toleranztextparameter
Erweiterte Einstellungen für den Toleranztext finden Sie im Menü DETAILPARAMETER > TOLERANZTEXTPARAMETER.
Pfeilparameter (Massbegrenzungselement)
Erweiterte Einstellungen für den jeweiligen Typ finden Sie im Menü DETAILPARAMETER > PFEILPARAMETER.