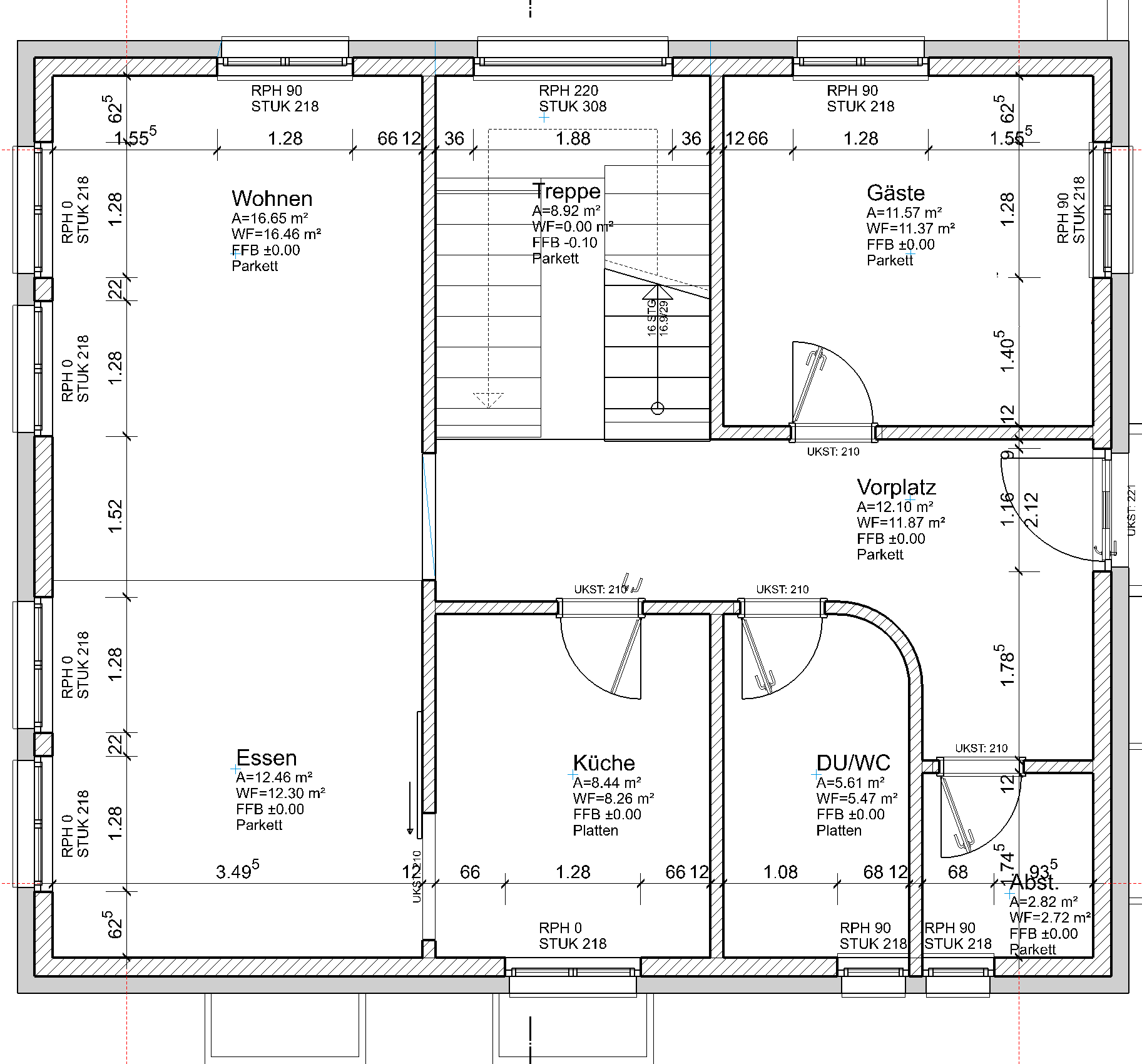
Innenvermassung ¶
Workshop
- Bereiten Sie die Positionen der Innenvermassung mit Hilfslinien vor.
Erstellen Sie Hilfslinien mit dem Abstand 70 cm zu den Aussenwänden.

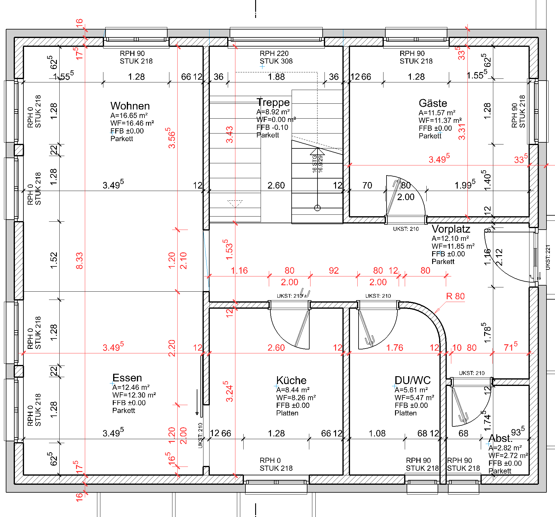
- Starten Sie ein neues KETTENMASS
und wechseln Sie zur Parametergruppe 3. Öffnen Sie die Einstellungen für die Öffnungsvermassung > PARAMETER FÜR ÖFFNUNGSVERMASSUNG und deaktivieren Sie die Option "Höhentext bei Fenster".

Erklärung
In den "Parametern für Öffnungsvermassung" können verschiedene Optionen gewählt werden, welche Höhen bei der Öffnungsvermassung für die Fenster- und Türöffnung vermasst werden sollen. Wurden Änderungen in dieser Maske vorgenommen, müssen die Vermassung und die Zusatzfunktion neu aufgerufen werden.
- Starten Sie eine neue Masskette und wählen Sie die Öffnungsvermassung.

- Geben Sie die Punkte P1 und P2 für die Referenzlinie an und klicken Sie für die Position auf die Hilfslinie P3.

- Starten Sie eine neue Masskette und wählen Sie die Öffnungsvermassung.

- Geben Sie die Punkte P4 und P5 für die Referenzlinie an und klicken Sie für die Position auf die Hilfslinie P6.

- Ergänzen Sie die restlichen Masse.
Tipp
Masstexte können verschoben werden. Die Masskette muss gewählt werden, dann können die Masstexte an ihren mittigen Handle verschoben werden.
- Die Öffnungsvermassung kann auch mit der normalen Punkteingabe kombiniert werden. Starten Sie eine neue Masskette und wählen Sie die Öffnungsvermassung.

- Geben Sie die Punkte P7 und P8 für die Referenzlinie der Öffnungsvermassung an und platzieren Sie die Masskette optimal > P9.

- Wechseln Sie jetzt in der Eigenschaftsleiste zur Punkteingabe und geben Sie die weiteren Punkte P10-P13 an.

- Brechen Sie die Funktion mit Esc ab.
- Verschieben Sie die Masstexte, die sich gegenseitig überschneiden.

- Versuchen Sie den Grundriss mit den Vermassungsoptionen weiter auszuarbeiten.
Tipp
Wenn ein falscher Masspunkt angewählt wird, können Sie einfach in der Eigenschaftsleiste auf MASSPUNKT LÖSCHEN klicken und der Punkt kann mit der linken Maustaste wieder gelöscht werden. Um direkt mit der Vermassung fortzufahren, wählen Sie die Funktion MASSPUNKT DEFINIEREN an und vermassen Sie weiter.
Tipp
Eine Raumbeschriftung kann an dessen Handles ausserhalb des Raums verschoben werden. Der Berechnungspunkt (blaues Kreuz) muss innerhalb des Raums bleiben.